รุ่นที่นำจำหน่าย
- M6284F1013-SW
สอบถามข้อมูลเพิ่มเติมติดต่อฝ่ายขาย

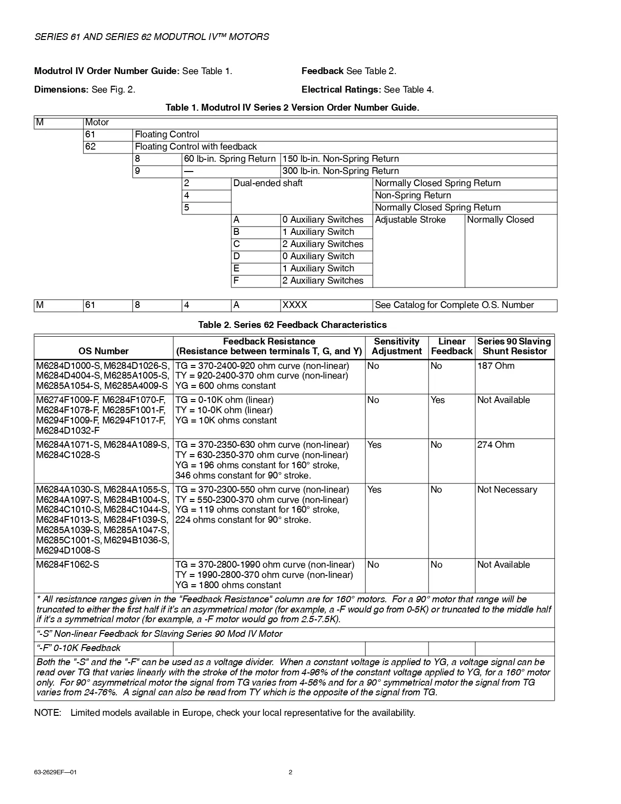
Honeywell Modutrol IV Motors – 62 Series เป็นมอเตอร์ควบคุมสำหรับ dampers และ valves ที่รองรับทั้ง spring return และ non‑spring return มี housing แบบ NEMA 3 weather‑protected, ปรับ stroke ได้ และติดตั้งง่าย เหมาะสำหรับ HVAC, boilers และ furnaces ที่ต้องการความปลอดภัยและความยืดหยุ่นสูง