รุ่นที่นำจำหน่าย
- LGB22.330A27
สอบถามข้อมูลเพิ่มเติมติดต่อฝ่ายขาย

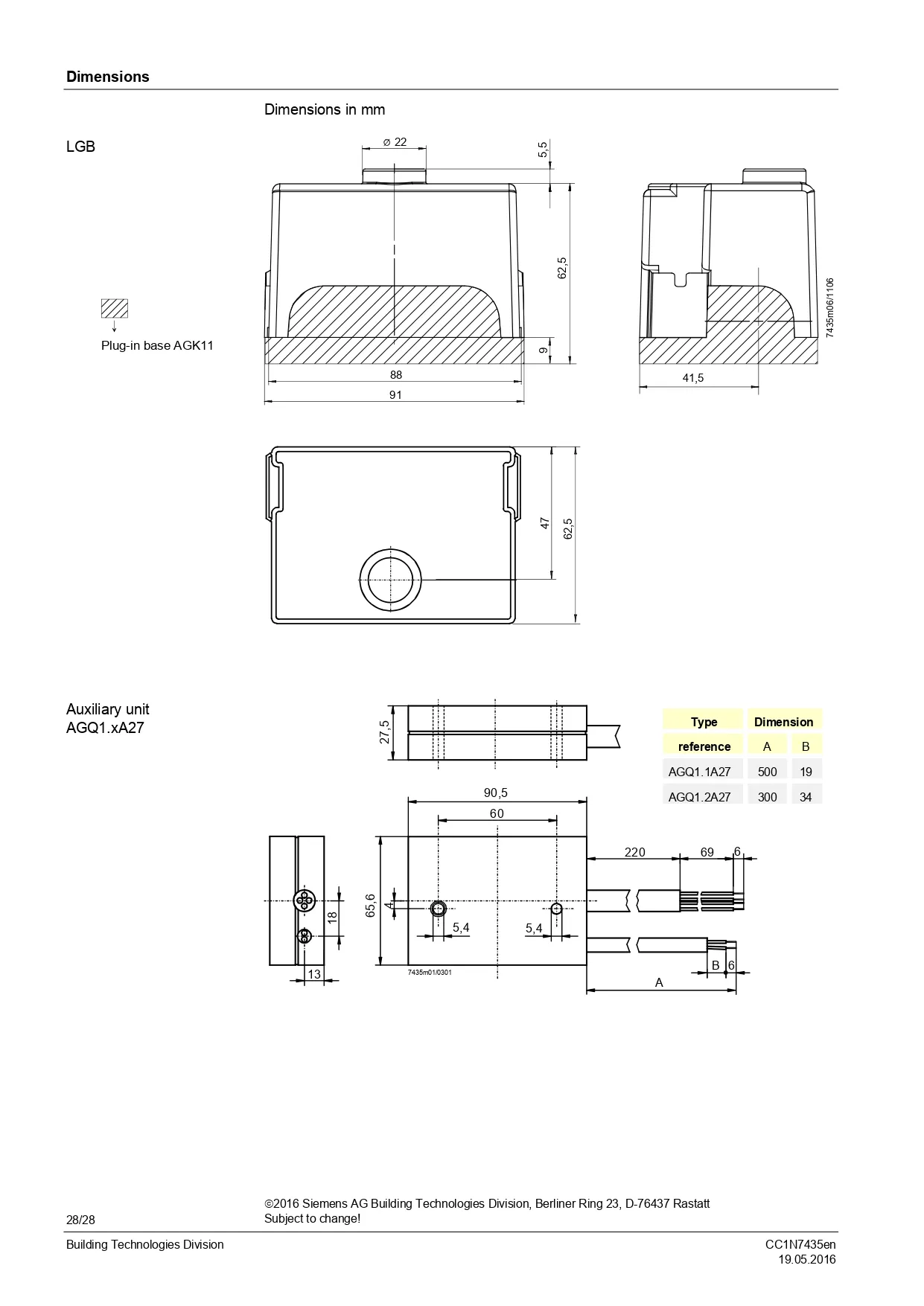
SIEMENS Burner Control – LGB Series เป็นชุดควบคุมหัวเผาแก๊สและแก๊ส/น้ำมันเชื้อเพลิงแบบ 1‑หรือ 2‑stage burners สำหรับกำลังงาน เล็กถึงกลาง (≤ 350 kW) ใช้งานแบบ intermittent operation โดยทำหน้าที่ Startup, Flame Supervision และ Safety Shut‑off รองรับการตรวจจับเปลวไฟด้วย ionization probe, blue‑flame detector (QRC1) หรือ UV detector (QRA + AGQ1)